EnerPHit retrofit transformation
BEFORE
A 1960’s semi-detached bungalow on a panhandle site in between houses built in 1930’s and now a Conservation Area.
AFTER
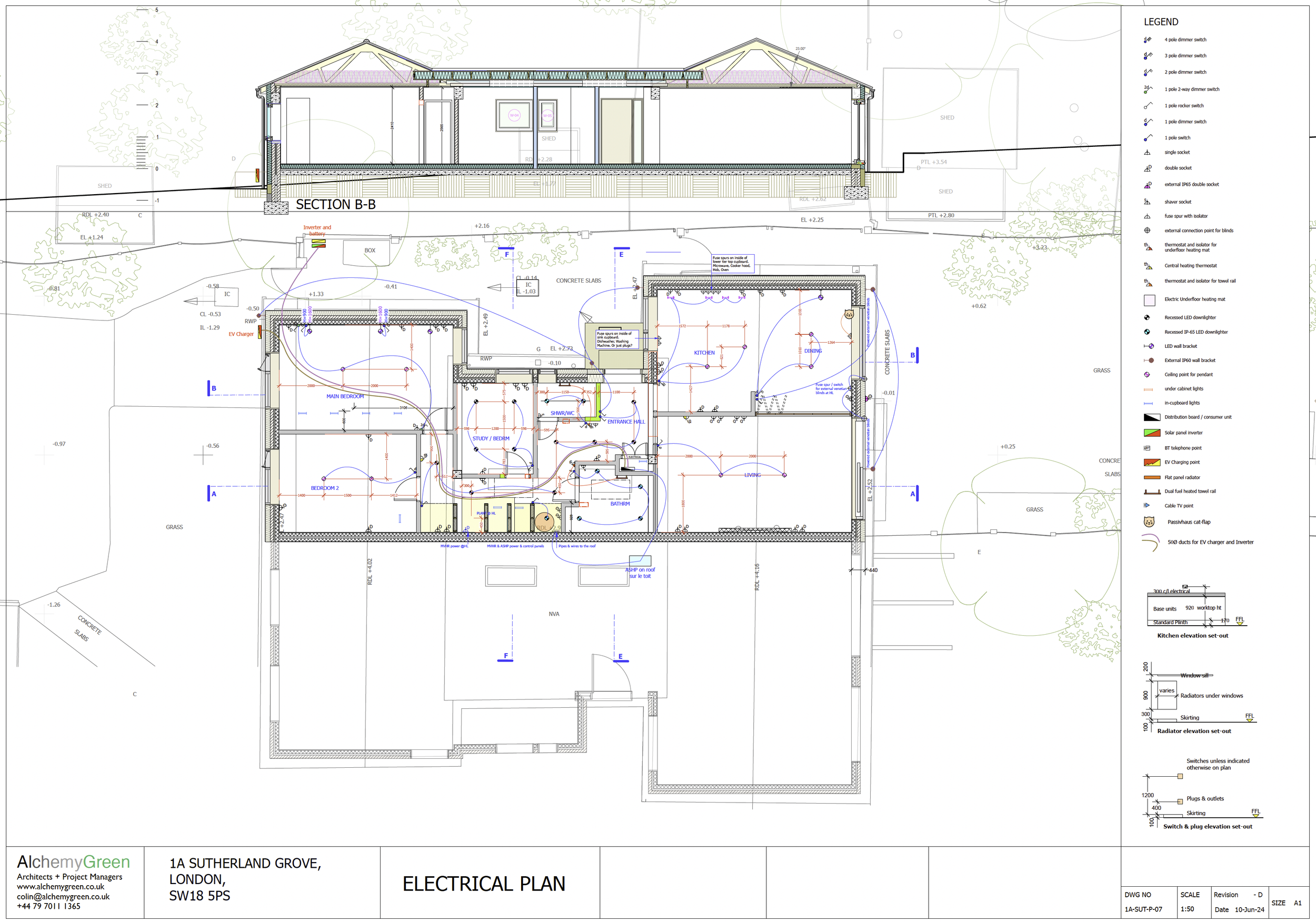
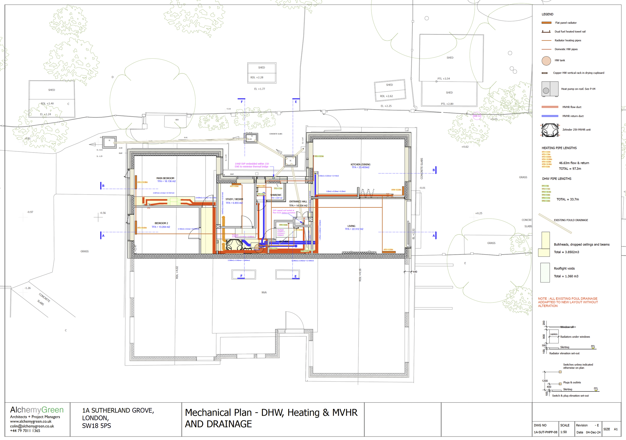
House transformed with exterior insulation, new triple glazed windows and doors, new floor and roof insulation. Build to an airtightness of 0.8 ACH and now consumes only 13W/m2. Zehnder MVHR for ventilation, and solar panels and battery storage for EV charging and general power. Heating provided by Vaillant ASHP.
